Maison de paille
Sur un terrain étroit, la maison tout en longueur s’adosse à la limite séparative nord pour s’ouvrir au sud sur le jardin. Dès l’entrée, la porte vitrée dévoile une longue perspective qui traverse toute la maison. A gauche, une paroi de rangements en peuplier renforce l’isolation du mur nord.A droite, de larges baies vitrées toute hauteur rythment la façade sud. Une terrasse filante en bois prolonge l’intérieur vers le jardin.
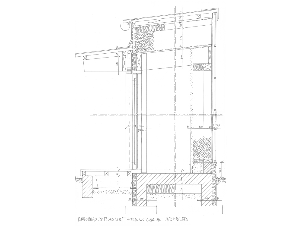
La maison n’a pas de chauffage. Son ossature bois est remplie d’épaisses bottes de paille en mur comme en toiture. Un enduit intérieur en terre recouvre la paille et contribue à l’inertie thermique. L’hiver, les vitrages du sud permettent au soleil de réchauffer la maison en stockant la chaleur dans le sol en béton. L’été, le toit en débord, les stores orientables et une ligne de bouleaux au feuillage chatoyant, modèreront les apports solaires. Un puits canadien en céramique, placé sous la maison, ventile l’intérieur et régule naturellement la température. L’emploi de matériaux sains aux teintes douces, l’hygrométrie et la température régulées naturellement, la lumière solaire filtrée, rendent particulièrement confortable l’ambiance intérieure de la maison. Hormis la façade sud vitrée, les trois autres façades sont habillées de lames de bois d’une largeur variable. Les volets intégrés dans le bardage rendent la maison mutique en l’absence de ses habitants.
Maison, Pessac (33) - Maître d’ouvrage privé – Construction neuve, 2024 - Surf. 120 m2 – avec Jean-Luc Barreau, architecte
